Verkocht:2e Schansstraat 55B, 3025 XK Rotterdam - Foto
Verkocht
+26

2e Schansstraat 55B 3025 XK Rotterdam

  • Appartement
  • 3 kamers
  • 2 slaapkamers
  • 1 badkamers
  • Bouwjaar 1912
  • 93 m² gebruiksoppervlakte
  • D Energielabel D

Beschrijving

Keurig verzorgde 3-kamer dubbele bovenwoning (ca. 93 m2) in een knusse en rustige straat in Delfshaven, dus vlakbij de charmante havens met daaromheen gezellige eet- en drinkgelegenheden. Maar ook vlakbij de Schiedamseweg, met nog meer gezelligheid, supermarkten en openbaar vervoer verbindingen. Je woont hier leuk, rustig, centraal en ruim in een appartement dat je zonder kluswerk kunt gaan bewonen!

Eerste verdieping

De entree hoef je met niemand te delen, je eigen huis begint al op straatniveau. Met de trap ben je snel op de eerste verdieping. Daar springt de fraaie houten visgraatvloer direct in het oog. Je voelt de warmte! Ook zie je overal in het appartement nog de authentieke deuren. Op de eerste verdieping woon je. Daar is de forse woonkamer die aan de voorzijde begint en doorloopt naar achteren waar zich de keuken bevindt. Die is eigentijds, recent (2019) en voorzien van inbouwapparatuur zoals een koel-/vriescombi, oven en vaatwasser. Naast de keuken is een riante bergkast. Je hebt in deze living met 46 m2 dan voldoende ruimte voor een zitgedeelte en een gezellig eetgedeelte.

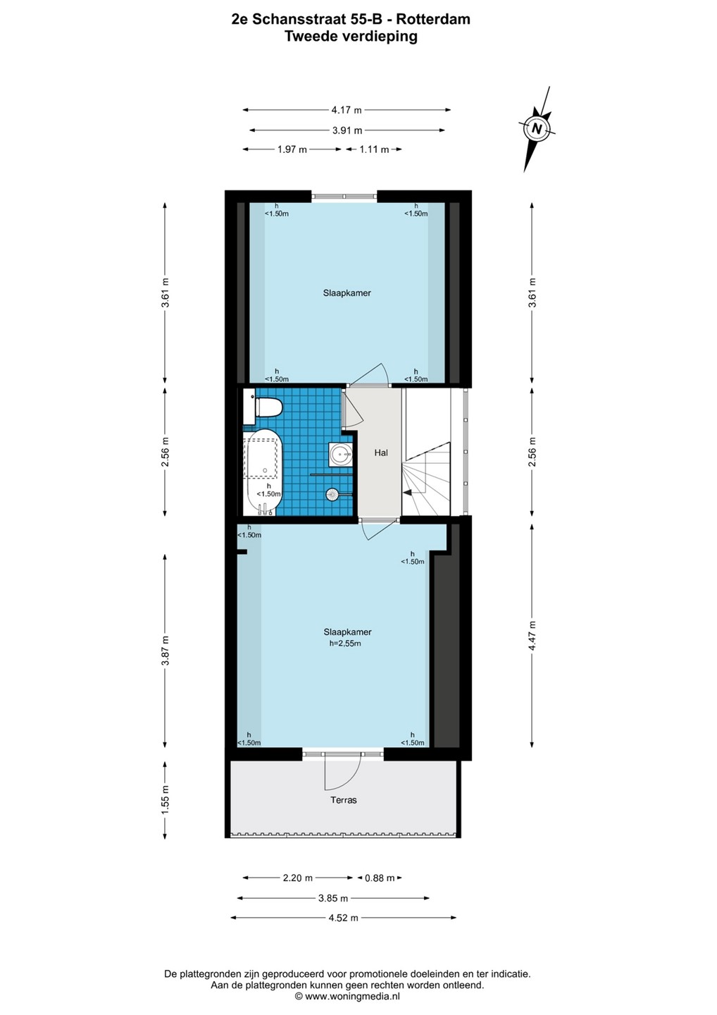
Tweede verdieping

Meer dan voldoende ruimte is ook op de bovenverdieping. Aan zowel voor- als achterzijde is een ruime slaapkamer, beide over de breedte van de woning. Tussen de twee slaapkamers is de comfortabele badkamer, ook uit 2019. De badkamer heeft een fijn bad, maar ook een inloopdouche en wastafelmeubel en het tweede toilet.
Aan de slaapkamer aan de achterzijde grenst een heerlijk ruim balkon.

Maten en afmetingen (indicatief)
- living, ca. 46 m2
- toilet
- kamer 1, ca. 4,47 x 3,85
- kamer 2, ca. 3,605 x 3,90
- badkamer, ca. 2,56 x 2,00
- balkon, ca. 1,55 4,17

Balkon

Het balkon is eigenlijk meer een terras, op het dak van het woonkamergedeelte aan de achterzijde. Hier zit je heerlijk in de namiddag- en avondzon.

Bijzonderheden

Goed om te weten:
- Bouwjaar circa 1912
- Gebruiksoppervlakte wonen conform NEN2580 ca. 93,2 m2
- Energielabel D
- Geheel voorzien van isolatieglas in kunststof kozijnen
- Eigen grond
- Verwarming en warm water via Cv-combiketel (2013)
- VvE-bijdrage ca. € 170,43 per maand
- Oplevering kan per direct plaatsvinden

Kaart

Kenmerken

Overdracht

Referentienummer
20
Vraagprijs
€ 359.000,- k.k.
Servicekosten
€ 170,43
Status
Verkocht
Aanvaarding
Direct
Laatste wijziging
Vrijdag 24 oktober 2025

Bouw

Type object
Appartement, bovenwoning, dubbelbovenhuis
Woonlaag
2e woonlaag
Soort bouw
Bestaande bouw
Bouwperiode
1912
Dakbedekking
Dakpannen
Keramisch
Type dak
Samengesteld
Isolatievormen
Dubbel glas

Oppervlaktes en inhoud

Woonoppervlakte
93,2 m²
Woonkameroppervlakte
46 m²
Inhoud
364 m³
Oppervlakte gebouwgebonden buitenruimte
7 m²

Indeling

Aantal bouwlagen
2
Aantal kamers
3 (waarvan 2 slaapkamers)
Aantal badkamers
1 (en 1 apart toilet)

Locatie

Ligging
Aan rustige weg
Dichtbij openbaar vervoer
Nabij school

Energieverbruik

Energielabel
D

CV ketel

Warmtebron
Gas
Bouwjaar
2013
Combiketel
Ja
Eigendom
Eigendom

Uitrusting

Warm water
CV-ketel
Verwarmingssysteem
Centrale verwarming
Keukenvoorzieningen
Inbouwapparatuur
Badkamervoorzieningen
Douche
Ligbad
Toilet
Wastafelmeubel

Vereniging van Eigenaren

Ingeschreven bij de KvK
Ja
Jaarlijkse vergadering
Ja
Periodieke bijdrage
Ja
Reservefonds
Ja
Opstal verzekering
Ja

Kadastrale gegevens

Kadastrale aanduiding
Delfshaven H 5098
Perceeloppervlakte
97 m²
Omvang
Appartementsrecht of complex
Eigendomsituatie
Eigen grond
Indexnummer
2